Aktuelle Architekturprojekte
Entdecken Sie hier die Projekte der Studio Candelieri GmbH. Wir helfen Ihnen, Ihre Bauvisionen zu verwirklichen.
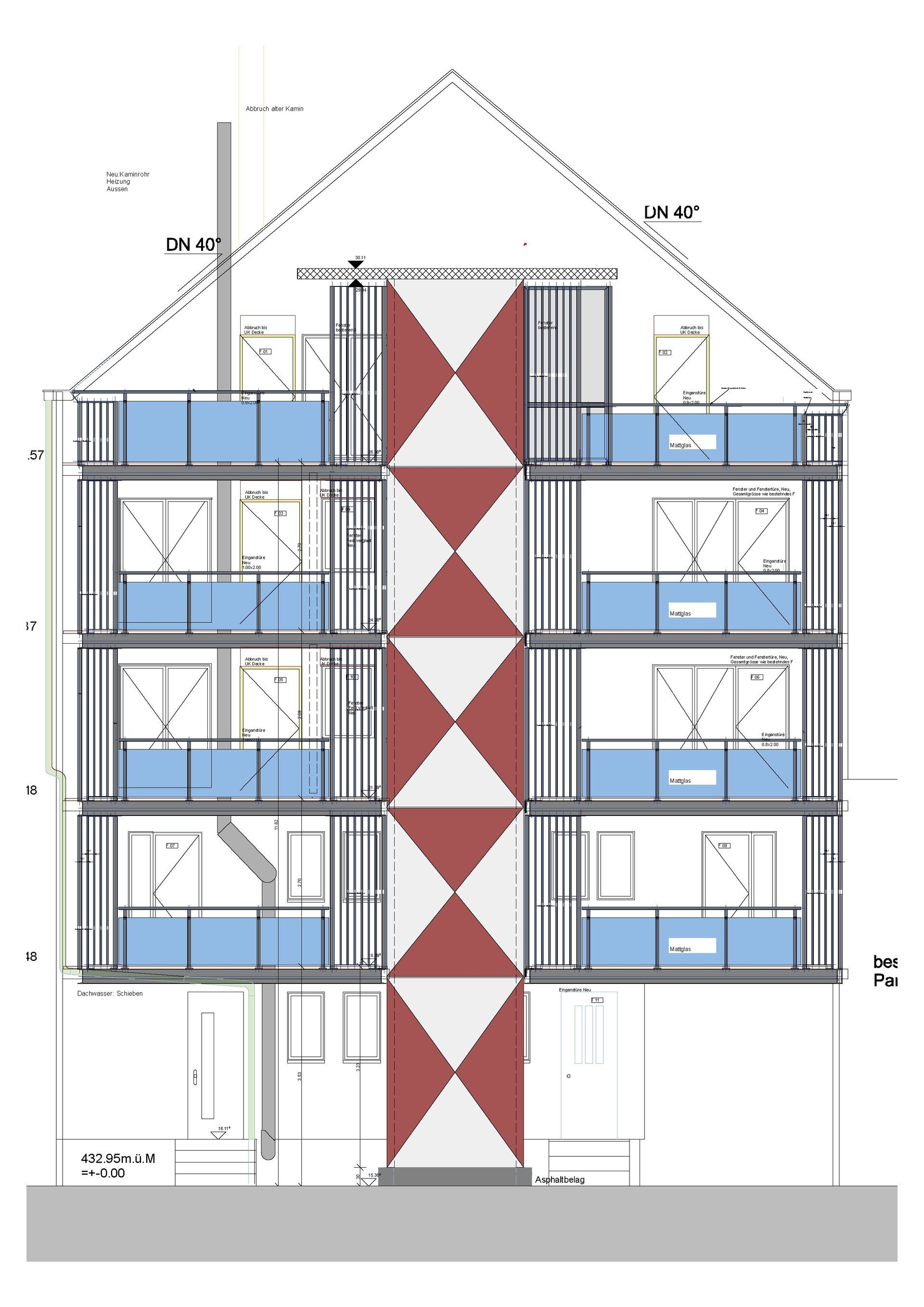
Laufende Architekturprojekte
Zurzeit arbeiten wir an diesen Aufträgen:
- Umbau und Dachaufstockung in Herrliberg
- Liftanbau mit Balkon und Gesamtsanierung eines Mehrfamilienhauses in Winterthur
- Umbau an der Reitbahnstrasse in Rorschach, Ortsbildschutz
- Umbau und Planung von einem Kultur- und Friedenszentrum in der Villa Felsberg in Rüti ZH, Kantonales Schutzobjekt
- Zwei Mehrfamilienhäuser, Umbau und Dachaufstockung, je neun Wohnungen, mit Anbau, aktuell in Bau in Elsau
- Energetische Sanierung von einem Mehrfamilienhaus an der Sonneggstrasse in Zürich, Denkmalschutz
Ikeda Friedens- und Kulturzentrum
Ort: Villa Felsberg
Typ: Denkmalschutz
Umwandlung in ein Friedens und Kulturzentrum
Umbau, Konferenzräume, Sanierung mit dem Denkmalschutz
Auftraggeber: privat
In arbeit/aktuell
Haus für eine Musikerfamilie
In enger Zusammenarbeit mit dem Architekten Julien Bellot
Auftraggeberr:privat, Direktauftrag
Ort: Herrliberg
Zeitraum der Bearbeitung:Januar. 2022 - Feb. 2024
Bearbeitungsstand: Ausgeführt, Inbetriebnahme, Garantiearbeiten
Aufgabe: SIA Phase: 41-52
Weitere Bilder und Pläne finden Sie bei den abgeschlossenen Projekten.
Fotograf : Federico Farinatti








































































































